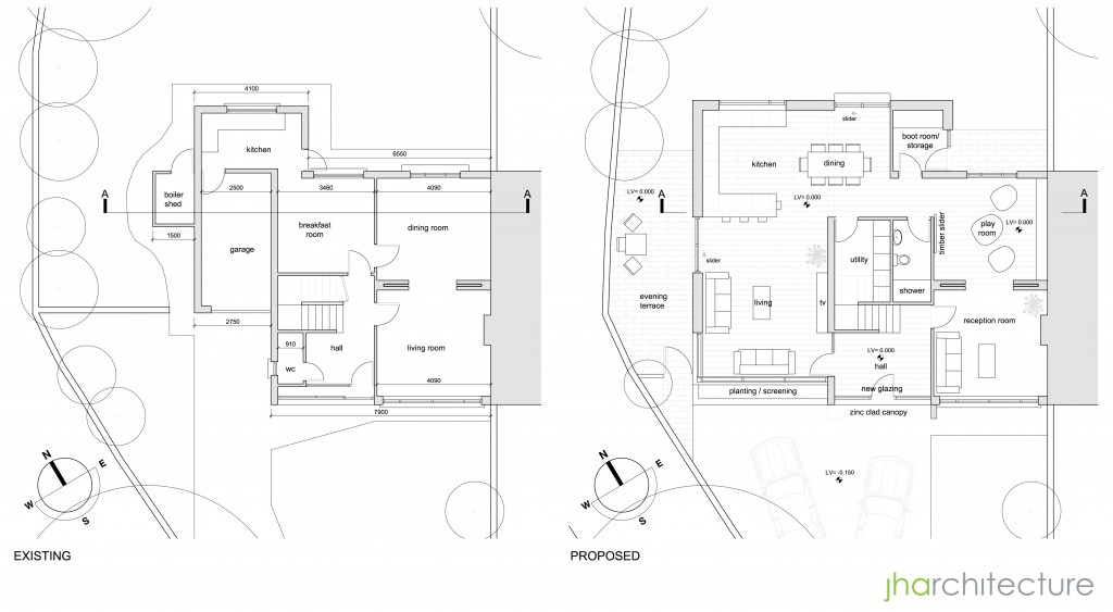
Extension & Upgrade in Rathfarnham, South Dublin
We were delighted to have another Planning Application successfully granted this week by South Dublin County Council. Really looking forward to seeing the extension and refurbishment of this fantastic semi-detached 4 bedroom house in Rathfarnham go to site …
See some images of the house in its current form and then with the proposed extension and upgrade works here or read more about the project here in our work section…
